ポップアップストアとは


ポップアップストアとは1〜2日間や、数週間など、期間限定で出店するショップのことです。期間限定ということでイベント性も高く、アイキャッチになる装飾を行ったり、出店するブランドの世界観やメッセージ性などを強く出す傾向にあります。
近年は実店舗を持たないD2Cブランドや、インフルエンサー発ブランドが増えているので、ポップアップストアを定期的に開催し、実際商品に触れられたり、試着できたりと、お客様との接点をつくることが増えています。
ポップアップストアのメリット

ポップアップストアの出店はブランド側にとって以下のようなメリットがあります。
- ・短期間スペースを借りることで、店舗運用の費用を抑えられる。
- ・お客様との直接コミュニケーションの場をつくれる。
- ・ブランドの認知や話題づくりに繋がる
お客様側からしても、オンラインストアだけしかないブランドや、一部エリアにしか出店していないブランドの商品を実際に手にとることができるよい機会です。
ポップアップストアを作るには?
まず開催する場所を決定します。レンタルスペースを借りたり、ショップやカフェの一部スペースを借りたり、百貨店や商業施設に出店するなど出店形態はさまざまあります。ブランドのユーザー層がもっとも訪れやすい形態を選定しましょう。
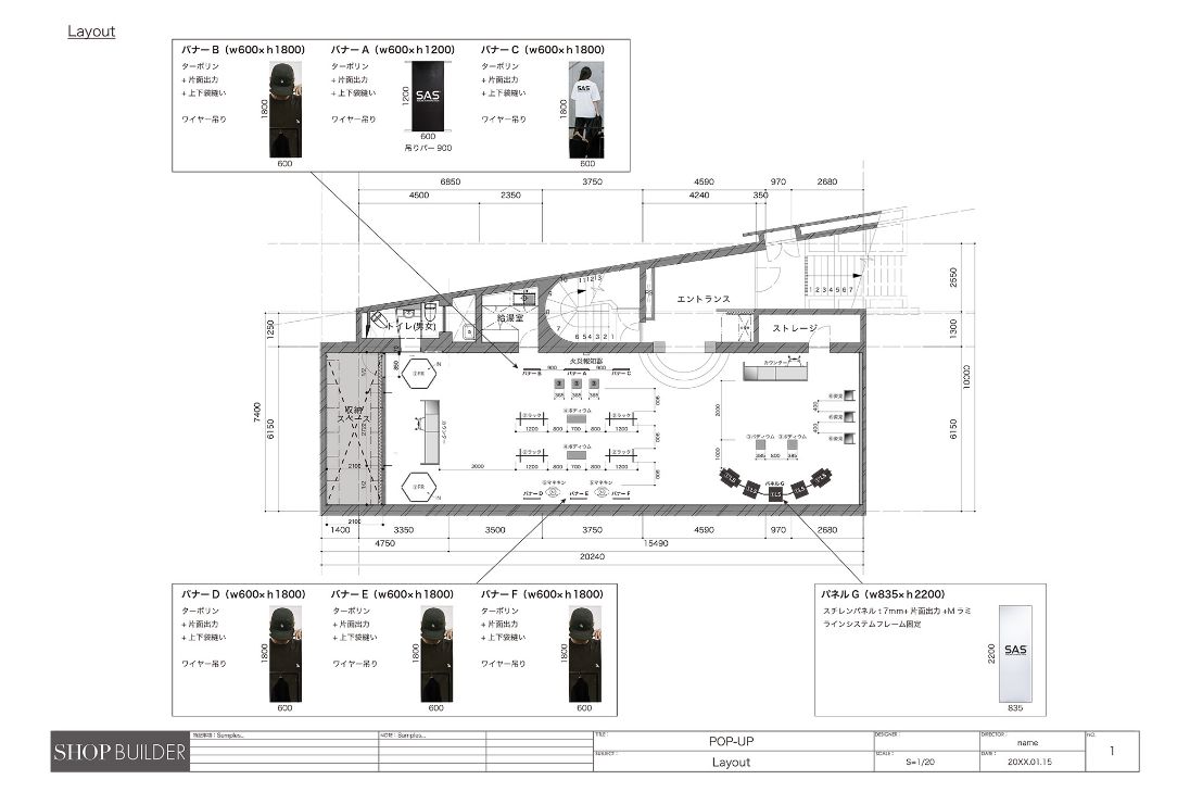
場所が決まったら間取りや、その施設のルール(施工や装飾の可否、搬入間口など)を確認します。それからお店のレイアウトを決めていきます。
レンタル什器でポップアップストアが作れるの?
もちろんレンタル什器でも可能です。お店のレイアウトが決まったら使用する什器やマネキンなどを決めていきます。レンタル什器のサービスはオンラインでも増えているので、お好みの什器を扱っているストアを探しましょう。
ショップビルダーでは、ポップアップストアで使える什器・マネキンを多数取り揃えております。
1〜2日間または1週間〜4週間という短期間から、2〜3ヶ月単位または1年間などの長期レンタルも可能です。そして全国に事業所があるため、エリアを移動しながら全国開催するポップアップストアにも対応が可能です。
例)8月は東京、9月は大阪・京都、10月は福岡で開催
レイアウトのご相談も可能です
ショップビルダーでは什器、マネキンのレンタルだけでなく、レイアウトの相談からおこないたい場合もオプションをご用意しております。
ショップビルダーには店舗づくりのプロのデザイナーが在籍しており、百貨店や路面店をはじめとする空間デザインの実績が多数ございます。プレスやPRのためのパースを作成することも可能です。
※レイアウト・施工プランはオプションになります。ご予算にあわせてご提案可能です。
什器の選定がわからない・・・
ストアのレイアウトは既に決まっているけれど、どんな什器がいくつ必要で、大きさのイメージがつかないといった場合も、「什器お任せプラン」をご用意しております。
会場の図面を確認させていただき、展示する商品数やカテゴリーにあわせて、什器の選定をおこなうミニマムプランをご利用ください。
搬入搬出や施工まで頼めるの?
ショップブルダーでは空間デザインから什器のレンタル、搬入搬出や施工まで一貫しておこなうことが可能です。

- 例)
- ・什器のみレンタル
- ・什器のみレンタル+搬入搬出
- ・空間デザイン+什器レンタル+搬入搬出+施工
上記のようにご要望に合わせた形態でご依頼いただけます。お見積時にご要望をおきかせください。
什器レンタルのみで、ご自身で什器を取りに行きたいというご要望も、事前にご相談いただき対応できる場合がございます。
ショップビルダー(SHOP BUILDER)の事例
アパレルのみならず、スポーツブランド、ライフスタイルブランドの空間デザインもおこなっています。D2Cブランドなど実店舗をおもちでないブランドのポップアップイベントも増えており、レンタル什器のご依頼も増えています。
アパレル、ポップアップ、イベントなどにわけて実績をご紹介しています。
さまざまな什器(ディスプレイツール)を展開中
ショップビルダーでは、シンプルでスタイリッシュな什器、マネキン、トルソーを開発しており、幅広く取り揃えております。見た目の美しさだけでなく、使いやすさや安全・安定性も考えたトータルデザインをおこなっています。
新商品も随時展開していますので、お気軽にご相談ください。
ポップアップスペースをお探しの方へ
ショップビルダーは、原宿駅竹下口より徒歩5分「SAS®イベントスペース」と提携しております。スペース利用とあわせて、ショップビルダーの什器もレンタル可能です。
ポップアップスペースなどをお探しの方は、ぜひご検討ください。


















